東雁来モデルハウスプラン、AJ-SG-43完成!!

ookouchitakuya

札幌店

大河内 琢久哉

2020年10月13日

こんにちは!
営業のおーこーちです!

今週末からまた!あの!モデルハウスを公開していきます!

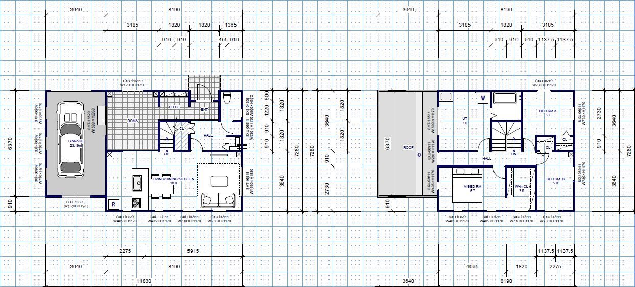
そしてとうとう!やっっと!!モデルハウスのプラン化が出来ました!!



☝この図面がモデルハウスのプラン

「AJ-SG-43」と名付けました✨✨✨
価格は¥25,300,000-(税込)





土間!ガレージ!!広いユーティリティ!!!
どこで何にしても楽しめちゃう間取り!!


既にご見学頂いたお客様には「この間取りで建てます!」
なんて仰って頂いたお客様もいらっしゃって、僕たちがご提案する暮らし方にご共感頂けてすごく嬉しいです✨

そこで!
今回はみなさんにこのプランについてご提案です!!!
「AJ-SG-43」でご契約いただきオープンハウスとしてお貸し頂けるお客様をお待ちしております☆

概要
・「AJ-SG-43」でご建築!
・オープンハウスとしてお貸し頂ける方!
・特典:プラン金額が¥25,300,000➡¥24,300,000!!

僕らがご提案する「AJ-SG-43」に、皆様のリアルな暮らしを重ねた姿を見せてください!!!

そしてこれからのアメカジオーナー様になるお客様にも見学させて頂きたいです!!

みなさまのご相談お待ちしております♪♪

モデルハウスの詳細・見学予約はコチラから


お住まいの地域(店舗)を
お選びください。