A様お引渡し後のリビング・・・

ookouchitakuya

札幌店

大河内 琢久哉

2017年6月16日

こんにちは!

営業の こーち こと 大河内です。

先日インナーガレージプランでご契約したA様のお引渡しを行いました♪

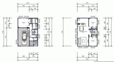
因みにインナーガレージとは

999.JPG

こんな感じで1F部分にガレージを組み込んだタイプの家の事です。

6月頭にお引渡しをしたんですがリビングの仕上がりが凄いのでご紹介したいなと思います♪

6228924867983.jpg

カッコイーですよね!

もともとはアメカジで建てるか分からない状態のなかで家を立てる為の考え方ってどうなんだろうね?

ってところからお話しをはじめていったオーナー様です!

まさかアメカジでご契約してくれるなんて思ってなかったので土地提案をする前の会話が

今でも忘れないです、次回土地提案をしますね~とご確認をしている時の会話で

私「次回土地提案して土地が決まったらアメカジでご契約の運びになっちゃいますけど大丈夫ですか?」

A様「はい、大丈夫でーす」

私「(・θ・)!!!」 軽っ!マジで!?みたいな色々な気持ちが混ざった感じです(笑

お引渡ししたあとの雰囲気は中々見れないのでこうやって写メを貰えると嬉しいです♪

A様これから宜しくお願いいたします!


お住まいの地域(店舗)を
お選びください。